Rif: IMMO-105536423
CAMPOBASSO
CAMPOBASSO
A Campobasso,città formata da una parte antica di origine medievale, ricca di valori storici e artistici, posta sul pendio di un colle dominato dal castello Monforte, e da una parte più moderna ed elegante originaria del XIX secolo, situata nella pianura ai piedi del centro antico,disponiamo nel Comune di Matrice, di un'incantevole Tenuta che insiste su una superficie di circa 10.000 metri quadrati di terreno con destinazione agricola.
La proprietà immobiliare in oggetto edificata rispettando la normativa antisismica vigente,che è totalmente recintata con alte mura in pietra, simbolo di potenza e sicurezza delle lussuose dimore borghesi Italiane di tutti i tempi, è completamente immersa nel suo verde privato, ricco di vegetazione e piante da frutta che creano un vero e proprio angolo di pace in cui trascorrere i meritati momenti di relax, ,
lontani dalla routine e dallo stress quotidiano.
Per gli amanti dell'esercizio fisico, all'interno della area oggetto d'interesse è presente anche un campo da tennis in terra battuta che può essere destinato a molteplici usi sportivi area di svago che insieme al parco botanico adiacente fa da splendida cornice alla Grandissima Villa singola di oltre 370 mq dislocata su tre livelli presente sulla nostra proprietà immobiliare, a cui è annessa anche una Depandance attrezzata.
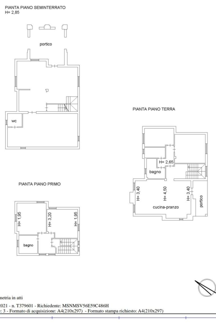
L'ingresso alla dimora si ha dal piano terra grazie ad una confortevole ed ampia veranda coperta che ci introduce nella zona giorno di metratura abbondante, dove è presente un camino a legna ed una cucina a vista attrezzata.
Tramite una porta in legno lavorato che confina con la cucina, accediamo ad una comoda tavernetta/cantina in cui è collocato un servizio igienico munito di doccia.
Dal piano terra percorrendo una scala rifinita in marmo lavorato a mano, si ha accesso al piano primo dove alla nostra destra incontriamo un alloggio formato da uno studio, una camera matrimoniale di ottime dimensioni, un bagno ed un locale lavanderia, mentre a sinistra troviamo una seconda ampia zona giorno con cucina a vista, molto elegante, caratterizzata da un terrazzino Principesco, denominato dal proprietario "IL PENSATOIO" ,che domina la stanza dando a quest'ultima un'impronta sfarzosa ed esclusiva con il compito di lasciare senza fiato e rapiti dallo stupore tutti coloro che s'imbattono in questo opera architettonica senza eguali e sicuramente unica nel suo genere.
L'intero complesso immobiliare è stato costruito tramite l'utilizzo di materiali pregiati,la caratteristica predominantee' sicuramente il vasto spazio esterno che diventa un vero percorso a contatto con la natura con dei veri e propri camminatoi dove lateralmente sono presenti piantumazioni ricercate e piante da frutto biologiche.
Vi è poi la possibilità di acquistare a parte circa 11.000 Mq di terreni agricoli(11 Lotti)tra cui un Oliveto ed un Bosco con legna da ardere dislocati nelle immediate vicinanze.
QUESTA GRANDE OPPORTUNITà TE LA OFFRE LA STASI REAL ESTATE A SOLI 270.000 EURO!!!
La proprietà immobiliare in oggetto edificata rispettando la normativa antisismica vigente,che è totalmente recintata con alte mura in pietra, simbolo di potenza e sicurezza delle lussuose dimore borghesi Italiane di tutti i tempi, è completamente immersa nel suo verde privato, ricco di vegetazione e piante da frutta che creano un vero e proprio angolo di pace in cui trascorrere i meritati momenti di relax, ,
lontani dalla routine e dallo stress quotidiano.
Per gli amanti dell'esercizio fisico, all'interno della area oggetto d'interesse è presente anche un campo da tennis in terra battuta che può essere destinato a molteplici usi sportivi area di svago che insieme al parco botanico adiacente fa da splendida cornice alla Grandissima Villa singola di oltre 370 mq dislocata su tre livelli presente sulla nostra proprietà immobiliare, a cui è annessa anche una Depandance attrezzata.
L'ingresso alla dimora si ha dal piano terra grazie ad una confortevole ed ampia veranda coperta che ci introduce nella zona giorno di metratura abbondante, dove è presente un camino a legna ed una cucina a vista attrezzata.
Tramite una porta in legno lavorato che confina con la cucina, accediamo ad una comoda tavernetta/cantina in cui è collocato un servizio igienico munito di doccia.
Dal piano terra percorrendo una scala rifinita in marmo lavorato a mano, si ha accesso al piano primo dove alla nostra destra incontriamo un alloggio formato da uno studio, una camera matrimoniale di ottime dimensioni, un bagno ed un locale lavanderia, mentre a sinistra troviamo una seconda ampia zona giorno con cucina a vista, molto elegante, caratterizzata da un terrazzino Principesco, denominato dal proprietario "IL PENSATOIO" ,che domina la stanza dando a quest'ultima un'impronta sfarzosa ed esclusiva con il compito di lasciare senza fiato e rapiti dallo stupore tutti coloro che s'imbattono in questo opera architettonica senza eguali e sicuramente unica nel suo genere.
L'intero complesso immobiliare è stato costruito tramite l'utilizzo di materiali pregiati,la caratteristica predominantee' sicuramente il vasto spazio esterno che diventa un vero percorso a contatto con la natura con dei veri e propri camminatoi dove lateralmente sono presenti piantumazioni ricercate e piante da frutto biologiche.
Vi è poi la possibilità di acquistare a parte circa 11.000 Mq di terreni agricoli(11 Lotti)tra cui un Oliveto ed un Bosco con legna da ardere dislocati nelle immediate vicinanze.
QUESTA GRANDE OPPORTUNITà TE LA OFFRE LA STASI REAL ESTATE A SOLI 270.000 EURO!!!
Consistenze
| Descrizione | Superficie | Sup. comm. |
|---|---|---|
| Principali | ||
| Immobile - 1° piano | 380 Mq | 380 Mqc |
| Totale | 380 Mqc | |








